
〜浦和駅徒歩4分 ワシントンホテル跡地・ホテルグローバルビュー浦和の店舗区画〜
浦和駅前のランドマークとして親しまれてきた旧ワシントンホテルが閉館し、その跡地に新たにオープンするホテルグローバルビュー浦和。
今回は、浦和駅周辺で店舗やテナントを検討中の方に向けて、物件概要や周辺環境、魅力をまとめました。
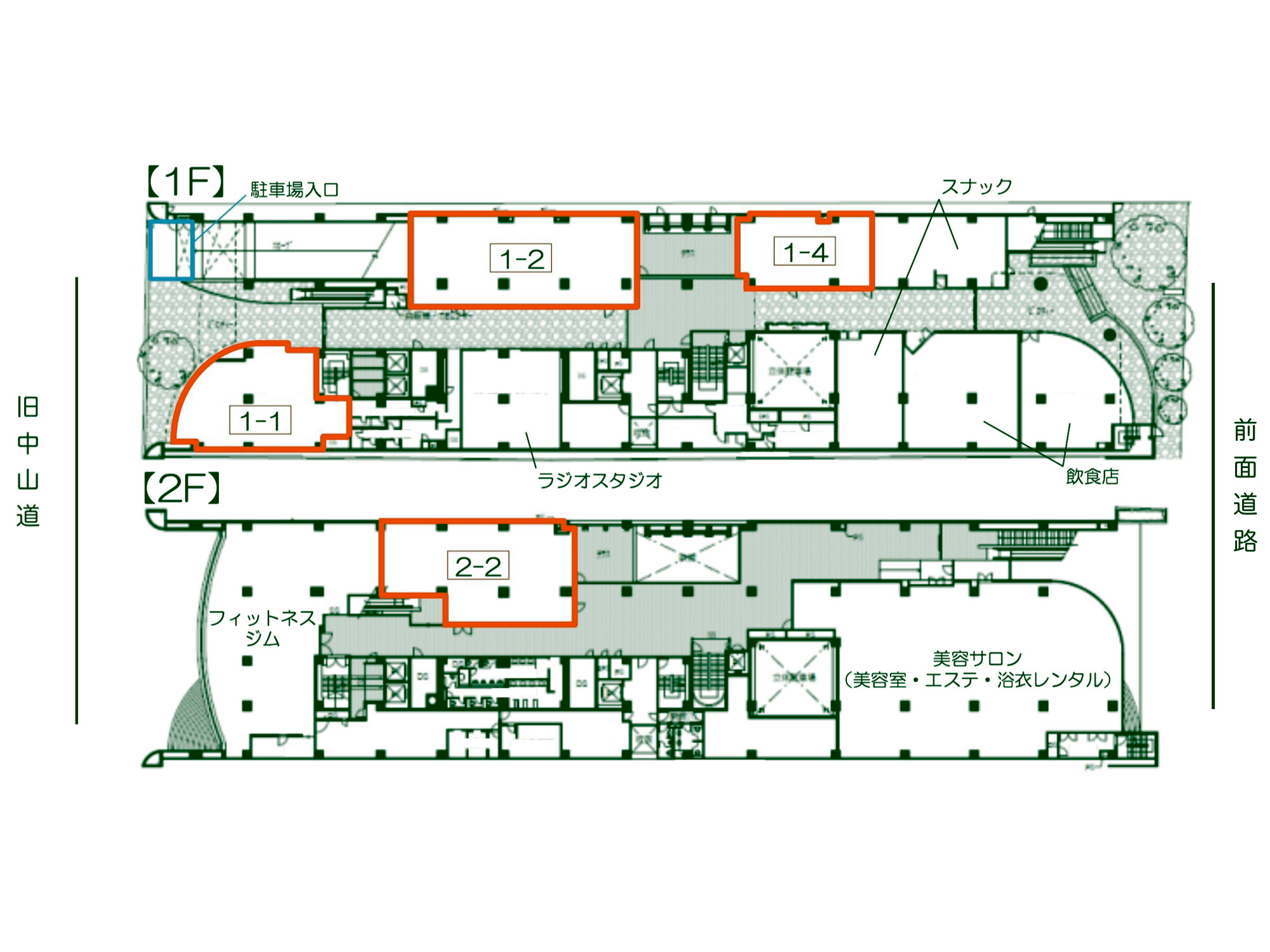
浦和駅周辺店舗物件|物件概要・スペック・特徴
・所在地:埼玉県さいたま市浦和区高砂2丁目1‑19
・最寄駅:浦和駅 徒歩4分
・階数・面積:1階区画(飲食店)、2階区画(サービス店舗中心)
・天井高:4m超の開放感
・特徴:居抜き物件(前テナントはスポーツバー)、既存設備の活用可能
旧ワシントンホテル跡地のホテルグローバルビュー浦和は、駅近の好立地で、路面店やサービス店舗に最適な区画が揃っています。
天井高4m超の開放感ある空間や、前テナントの居抜き設備を活用できる点も大きな魅力です。
ホテルブランドの新規開業に伴い、周辺の注目度も高まっています。









浦和駅周辺の集客力・URAWA THE TOWER再開発情報
サブエントランス側には、2026年竣工予定のURAWA THE TOWERが計画されています。住宅・商業・公共施設が一体となった複合タワーで、地域の新たなランドマークとして注目される物件です。
・地上27階建・全525邸の免震タワーレジデンス
・商業施設や市民会館、子育て支援センター併設
・ピアノ鍵盤をモチーフにした低層部デザイン、高層部は品格あるファサード
・ジム・コワーキング・パーティルームなど、多彩な共用施設
周辺再開発により、将来的な集客力や地域の賑わいを取り込める立地で、浦和駅周辺で店舗展開を検討する方にとって希少性の高い物件です。ホテル開業による注目度アップも加わるため、集客面でのメリットはさらに大きくなります。



浦和駅テナント募集まとめ|ホテルグローバルビュー浦和
・立地の強み:浦和駅徒歩4分、旧ワシントンホテル跡地
・物件の特徴:天井高4m超、居抜き設備を活用可能
・周辺環境:URAWA THE TOWER再開発で地域の賑わい増
・用途:飲食店、サービス店舗向き
浦和駅の新たなランドマークホテルグローバルビュー浦和は、居抜き設備を活用できる希少な路面店です。
今後のURAWA THE TOWER周辺再開発も加わり、地域の集客を取り込める魅力的な立地です。
テナント募集の詳細や現地ご案内は、ぜひお気軽にお問い合わせください。








